Dom Sędziszów małopolski
Sędziszów Małopolski Pokaż na mapie ›
Dodane: Piątek, 16 Styczeń, 2026 22:19
799 000 zł
3551 zł/m2
Szczegóły ogłoszenia
- Kategoria: Domy / Sprzedaż
- Powierzchnia:225 m2
- Liczba pokoi:1 pokój
- Rynek:Wtórny
- Rok budowy:2026
- Sprzedaż:Pośrednik
- Cena: 799 000 zł / 3551 zł/m2
Opis oferty
Kontakt telefoniczny: 508 - pokaż numer telefonu -Na sprzedaż nowoczesny dom jednorodzinny w trakcie budowy,
zlokalizowany w spokojnej, dobrze skomunikowanej części Sędziszowa
Małopolskiego (ul. Grobla). Dom wg. projektu Z465 (firmy Z500) to
funkcjonalna i energooszczędna koncepcja domu parterowego z
możliwością adaptacji poddasza użytkowego.
Podstawowe informacje:
Powierzchnia użytkowa parteru: 95,5 m²
Powierzchnia netto (łącznie): 225 m²
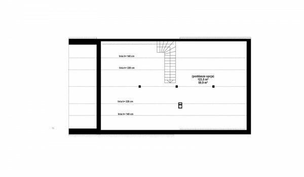
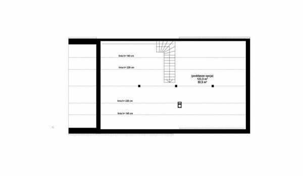
Poddasze do adaptacji: ok. 100 m² (ok. 80 m² przy wysokości ≥ 1,8
m)
Powierzchnia zabudowy: 146,8 m²
Kubatura: 487,1 m³
Działka: 13 ar
Stan: surowy – możliwość indywidualnej adaptacji
Technologia: murowana
Posadowienie: fundament liniowy
Konstrukcja dachu: więźba tradycyjna, dach dwuspadowy (35°)
Pokrycie dachu: blachodachówka
Funkcjonalny układ pomieszczeń
Dom zaprojektowano z wyraźnym podziałem na strefy:
Część prywatna (nocna):
2 komfortowe sypialnie
przestronna łazienka z miejscem na wannę i prysznic
Część dzienna:
jasny salon z aneksem kuchennym
duże przeszklenia z wyjściem na zadaszony taras
harmonijne połączenie wnętrza z ogrodem
Poddasze:
pełnowartościowa przestrzeń do własnej aranżacji
idealna na sypialnię główną, strefę rekreacyjną lub gabinet
Energooszczędność i nowoczesne rozwiązania
wentylacja mechaniczna z rekuperacją
ogrzewanie: kocioł na biomasę
ciepła woda: kocioł na biomasę + kolektory słoneczne
energia pierwotna (EP): 26,81 kWh/m²/rok
energia końcowa (EK): 59,53 kWh/m²/rok
projekt zgodny z normami Eurokod
III strefa śniegowa i wiatrowa
Możliwość personalizacji
Przy rezerwacji domu w obecnym stanie:
wybór koloru elewacji
adaptacja poddasza według własnych potrzeb (w stosunku co do
pierwotnego projektu dodano na poddaszu dwa duże okna).
Lokalizacja
Sklepy spożywcze:
lokalny sklep – ok. 300 m
większy sklep spożywczy – 1,2–1,5 km
Szkoły:
Szkoła Podstawowa nr 1 – 1,5–1,8 km
Szkoła Podstawowa nr 2 – 1,8–2,2 km
Przedszkola:
Przedszkole nr 1 – ok. 1,5 km
Przedszkole nr 2 – 1,7–2,0 km
Przychodnie:
Przychodnia Rejonowa / MEDYK – 1,4–1,6 km
inne NZOZ – 1,7–2,0 km
Apteki:
Apteka Nova – 1,4–1,6 km
Apteka Vitafarm – ok. 1,5 km
Komunikacja:
przystanek autobusowy – 200–300 m
główny przystanek – 1,3–1,5 km
Kolej:
PKP Sędziszów Małopolski – 2,5–3,0 km
PKP Ropczyce – 7–8 km
Centrum miasta:
1,3–1,6 km
Jasne i przestronne wnętrza
Dom został zaprojektowany z myślą o maksymalnym doświetleniu
wnętrz i komforcie codziennego użytkowania. Duże przeszklenia w
części dziennej zapewniają doskonały dostęp naturalnego światła
przez cały dzień, co podkreśla wrażenie przestronności i
otwartości. Ergonomiczny, logiczny układ pomieszczeń gwarantuje
wygodną komunikację oraz wyraźny podział na strefę dzienną i
prywatną, dzięki czemu dom jest funkcjonalny zarówno dla par, jak i
rodzin z dziećmi. Przemyślane proporcje pomieszczeń dają szerokie
możliwości aranżacyjne i łatwość dopasowania wnętrz do
indywidualnych potrzeb mieszkańców.
Dla osoby kupującej dom w obecnym stanie oferujemy możliwość
doprowadzenia nieruchomości do stanu deweloperskiego w cenie 799 000
zł. W cenie zawarta jest pompa ciepła wraz z ogrzewaniem podłogowym
na parterze.
Cena nie obejmuje adaptacji poddasza, tj. wykonania ogrzewania
podłogowego na piętrze oraz wylewek.
Na działce brak przyłącza gazowego – gaz znajduje się na
działce sąsiedniej, z możliwością jego podciągnięcia.
Istnieje również możliwość zakupu domu w stanie surowym
zamkniętym – szczegóły cenowe dostępne na zapytanie.
Podsumowanie
Idealna propozycja dla osób poszukujących nowoczesnego domu z
ogrodem, w spokojnej lokalizacji, a jednocześnie blisko centrum
miasta. Nieruchomość daje możliwość wykończenia i aranżacji
według indywidualnych potrzeb.
Kontakt tel. 508 - pokaż numer telefonu - .
Telephone contact: 508 - pokaż numer telefonu -
For sale: a modern single-family home under construction, located in a
quiet, well-connected part of Sędziszów Małopolski (Grobla Street).
Designed by Z465 (Z500), this house is a functional and
energy-efficient single-story concept with the option of a usable
attic.
Basic information:
Usable area of the ground floor: 95.5 m²
Net area (total): 225 m²
Attic for conversion: approx. 100 m² (approx. 80 m² with a height of
≥ 1.8 m)
Building area: 146.8 m²
Volume: 487.1 m³
Plot: 13 ares
Condition: raw – possibility of individual adaptation
Technology: brick
Foundation: linear foundation
Roof construction: traditional truss, gable roof (35°)
Roof covering: metal roof tiles
Functional room layout
The house was designed with a clear division into zones:
Private part (night):
2 comfortable bedrooms
spacious bathroom with space for a bathtub and shower
Living area:
bright living room with kitchenette
large glazing with access to the covered terrace
harmonious combination of interior and garden
Attic:
a full-fledged space for your own arrangement
perfect for a master bedroom, recreation area or study
Energy efficiency and modern solutions
mechanical ventilation with heat recovery
heating: biomass boiler
hot water: biomass boiler + solar collectors
primary energy (EP): 26.81 kWh/m²/year
final energy (EC): 59.53 kWh/m²/year
design compliant with Eurocode standards
Snow and wind zone III
Possibility of personalization
When booking a house in its current condition:
choice of facade color
adaptation of the attic according to your needs (compared to the
original design, two large windows were added in the attic).
Location
Grocery stores:
local shop – approx. 300 m
larger grocery store – 1.2–1.5 km
Schools:
Primary School No. 1 – 1.5–1.8 km
Primary School No. 2 – 1.8–2.2 km
Kindergartens:
Kindergarten No. 1 – approx. 1.5 km
Kindergarten No. 2 – 1.7–2.0 km
Clinics:
District Clinic / MEDICAL CENTER – 1.4–1.6 km
other NZOZ – 1.7–2.0 km
Pharmacies:
Nova Pharmacy – 1.4–1.6 km
Vitafarm pharmacy – approx. 1.5 km
Communication:
bus stop – 200–300 m
main stop – 1.3–1.5 km
Rail:
PKP Sędziszów Małopolski – 2.5–3.0 km
Ropczyce Railway Station – 7–8 km
City center:
1.3–1.6 km
Bright and spacious interiors
The house was designed with maximum interior light and everyday
comfort in mind. Extensive glazing in the living area provides
excellent access to natural light throughout the day, enhancing the
impression of spaciousness and openness. The ergonomic, logical layout
of the rooms guarantees convenient circulation and a clear division
into living and private areas, making the house functional for both
couples and families with children. Well-thought-out room proportions
provide extensive design options and allow for easy adaptation to the
individual needs of the residents.
For those purchasing the house in its current condition, we offer the
option of restoring the property to developer condition for PLN
799,000. The price includes a heat pump and underfloor heating on the
ground floor.
The price does not include attic adaptation, i.e. installation of
underfloor heating on the first floor and screeds.
There is no gas connection on the plot - gas is available on the
neighboring plot, with the possibility of connecting it.
It is also possible to purchase the house in a shell state – price
details available upon request.
Summary
An ideal option for those seeking a modern home with a garden, in a
quiet location yet close to the city center. The property offers the
possibility of finishing and arranging it according to individual
needs.
Contact tel. 508 - pokaż numer telefonu - .
Kontakt:
Kontakt telefoniczny:
tel: 506 - pokaż numer telefonu -
@
KONTAKT DO telefoniczny w sprawie tego ogłoszenia, zamieszczony jest
w treści opisu na początku opisu i na końcu. Proszę nie dzwonić
na żaden inny nr tel, niż ten podany w opisie do właściciela.
Przedstawiona oferta cenowa ma charakter informacyjny, nie stanowi
oferty handlowej w rozumieniu Art.66 par.1 Kodeksu Cywilnego
Otwórz ogłoszenie, treść opisu i w pierwszym zdaniu i na końcu
opisu znajdziesz właściwy numer telefonu. Zadzwoń, zapytaj o
ogłoszenie.
Sprawdź zainteresowanie tym ogłoszeniem
Wyświetlenia
Data dodania
Ostatnio widziany
Obserwujących
Wysłane zapytania
Odsłony telefonu
Powiadom o podobnych ogłoszeniach
Lokalizacja: Sędziszów Małopolski
Kategoria: Nieruchomości » Domy » Sprzedaż
Cena: od 679000 zł do 919000 zł Powierzchnia : od 191 m2 do 259 m2
Chcę otrzymywać powiadomienia o nowych ofertach
- Wypromuj ogłoszenie
- Zgłoś naruszenie
- Drukuj ulotkę
- Edytuj/usuń ogłoszenie
- Udostępnij ogłoszenie
- Dodaj na Facebook


















